您当前位置:山东鲁起重工机械有限公司【网站】 >> 产品展示 >> 门式起重机 >> 浏览图片
门式起重机
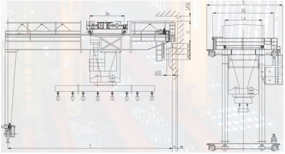
产品介绍:
BMH半门式起重机与CD1、MD1等型号的电动葫芦配套使用,是一种有轨运行的中小型起重机,本产品多为地面操纵或遥控操纵两种形式。下横梁专用减速机可使起重机内侧作业空间更大。
参数:
1、起重量:2、3、5、10吨(可根据实际要求定做)
2、跨度:10m-20m(可根据实际要求定做)
3、起升高度:可根据实际要求定做
4、防护等级IP54
5、工作环境温度-25°C~40°C
用途:
本产品为一般用途起重机,多用于露天场所及仓库的装卸。
结构优点:

服务:
1、售前服务
了解客户需求,帮助客户选择合理的产品。
向客户提供前期设备安装前的技术服务。
向客户提供设备操作、维修、维护人员的厂内前期培训。
2、售中服务
根据合同要求,跟踪、生产及发货,保证设备安全完整到达客户指定地点。
提供设备安装前期安装所需各种技术参数。
3、售后服务
按合同货客户约定时间进行设备安装、调试、维修。
根据客户需求,提供现场培训。
接待处理客户对产品质量、服务质量的投诉,快速到达现场解决问题。
建立设备用户档案,每台设备的安装、调试、维修记录全部存档,保存。保证每个客户的每台产品具有服务的可追塑性及向客户对每台设备保养提供技术支持。
不定期进行客户回访,采集客户对产品及服务的意见和建议并及时改进。
各服务站由售后服务站统一调配,保证服务的及时性,有效性。
厂区实力
厂区实力
厂区实力
厂区实力
厂区实力
厂区实力
厂区实力
厂区实力