您当前位置:山东鲁起重工机械有限公司【网站】 >> 产品展示 >> 单梁起重机 >> 浏览图片
单梁起重机
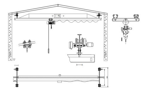
LX型电动单梁悬挂起重机
与CD₁、MD₁型电动葫芦配套使用,构成有轨运行的单梁起重机。该悬挂起重机的运行轨道使用用工字钢,主梁两端悬挂于工字钢下方前后运行,是小吨位起重设备。
产品介绍:
与CD1、MD1型电动葫芦配套使用,构成有轨运行的单梁起重机。该悬挂起重机的运行轨道使用用工字钢,主梁两端悬挂于工字钢下方前后运行,是小吨位起重设备。
参数:
1、吨位有0.5、1、2、3、5、10吨(可根据实际要求定做)
2、跨度:3-16米(可根据实际要求定做)
3、工作环境温度为-25℃~40℃之间
4、 操纵方式为地面操纵(有线和无线两种)
用途:
LX型单梁悬挂起重机多用于机械制造、装配车间及仓库等场所
结构优点:
本机主梁为箱形与工字钢焊结构,在保证强度、刚度和稳定性的基础上具有美观、体积小的优点。主、端梁连接采用拆分式结构,方便于运输、安装。 本产品设有地面和操纵室两种操纵形式。操纵室备有开式、闭式两种,入门方向有侧面及端面两种,供用户按不同要求进行选择。

服务:
1、售前服务
了解客户需求,帮助客户选择合理的产品。
向客户提供前期设备安装前的技术服务。
向客户提供设备操作、维修、维护人员的厂内前期培训。
2、售中服务
根据合同要求,跟踪、生产及发货,保证设备安全完整到达客户规定地点。
提供设备安装前期安装所需各种技术参数。
3、售后服务
按合同货客户约定时间进行设备安装、调试、维修
根据客户需求,提供现场培训。
接待处理客户对产品质量、服务质量的投诉,快速到达现场解决问题。
建立设备用户档案,每台设备的安装、调试、维修记录全部存档,保存。保证每个客户的每台产品 具有服务的可追塑性及向客户对每台设备保养提供技术支持。
不定期进行客户回访,采集客户对产品及服务的意见和建议并及时改进。
各服务站由售后服务站统一调配,保证服务的及时性,有效性。
厂区实力
厂区实力
厂区实力
厂区实力
厂区实力
厂区实力
厂区实力
厂区实力