您当前位置:山东鲁起重工机械有限公司【网站】 >> 产品展示 >> 单梁起重机 >> 浏览图片
单梁起重机
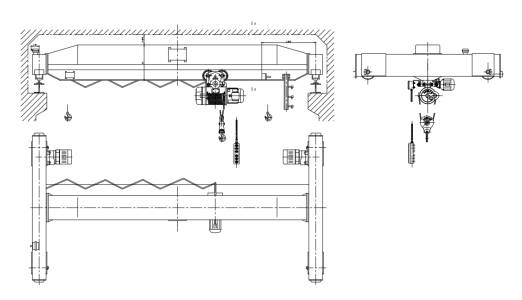
LD型电动单梁桥式起重机
LD型电动单梁桥式起重机是一种结构简单、用途广泛的起重机械,整机与CD₁型、MD₁型电动葫芦配套使用。起重机操纵方式设有地面(分为有线和无线两种)、操纵室操纵,可供用户选用。
产品介绍:
LD型电动单梁桥式起重机是一种结构简单、用途广泛的起重机械,整机与CD1型、MD1型电动葫芦配套使用。起重机操纵方式设有地面(分为有线和无线两种)、操纵室操纵,可供用户选用。
参数:
1、起重量:1、2、3、5、10、16、20、25、32吨(可根据实际要求定做)
2、跨度:7.5m-34.5m(可根据实际要求定做)
3、起升高度:可根据实际要求定做
4、工作级别为A3~A5
5、工作环境温度-25°C~40°C
用途:
多用于机械制造,装配车间及仓库等场所。如带有马达抓斗作吊具,则可装卸和搬运散粒物品。不适于在有爆炸危险、火灾危险的环境中工作,也不宜在具有很大湿度或充满酸、碱气体的场所里工作,亦不能用于运输溶化金属,有毒物品和易燃易爆物品。
结构优点:
本机主梁为箱形与工字钢焊结构,在保证强度、刚度和稳定性的基础上具有美观、体积小的优点。主、端梁连接采用拆分式结构,方便于运输、安装。 本产品设有地面和操纵室两种操纵形式。操纵室备有开式、闭式两种,入门方向有侧面及端面两种,供用户按不同要求进行选择。

服务:
1、售前服务
了解客户需求,帮助客户选择合理的产品。
向客户提供前期设备安装前的技术服务。
向客户提供设备操作、维修、维护人员的厂内前期培训。
2、售中服务
根据合同要求,跟踪、生产及发货,保证设备安全完整到达客户指定地点。
提供设备安装前期安装所需各种技术参数。
3.、售后服务
按合同货客户约定时间进行设备安装、调试、维修 。
根据客户需求,提供现场培训。
接待处理客户对产品质量、服务质量的投诉,快速到达现场解决问题。
建立设备用户档案,每台设备的安装、调试、维修记录全部存档,保存。保证每个客户的每台产品具有服务的可追塑性及向客户对每台设备保养提供技术支持。
不定期进行客户回访,采集客户对产品及服务的意见和建议并及时改进。
各服务站由售后服务站统一调配,保证服务的及时性,有效性。
厂区实力
厂区实力
厂区实力
厂区实力
厂区实力
厂区实力
厂区实力
厂区实力